Skip to content
UNBEATABLE BRANDS, UNBEATABLE PRICES,  FREE DELIVERY TO MOST OF THE UK*
THOUSANDS OF PRODUCTS FROM TOP BRANDS!

Armitage Shanks Doc M Shower Room Pack

Save £1,329.00
Original price £5,115.00
Current price £3,786.00
CODE: S6960AC

Description

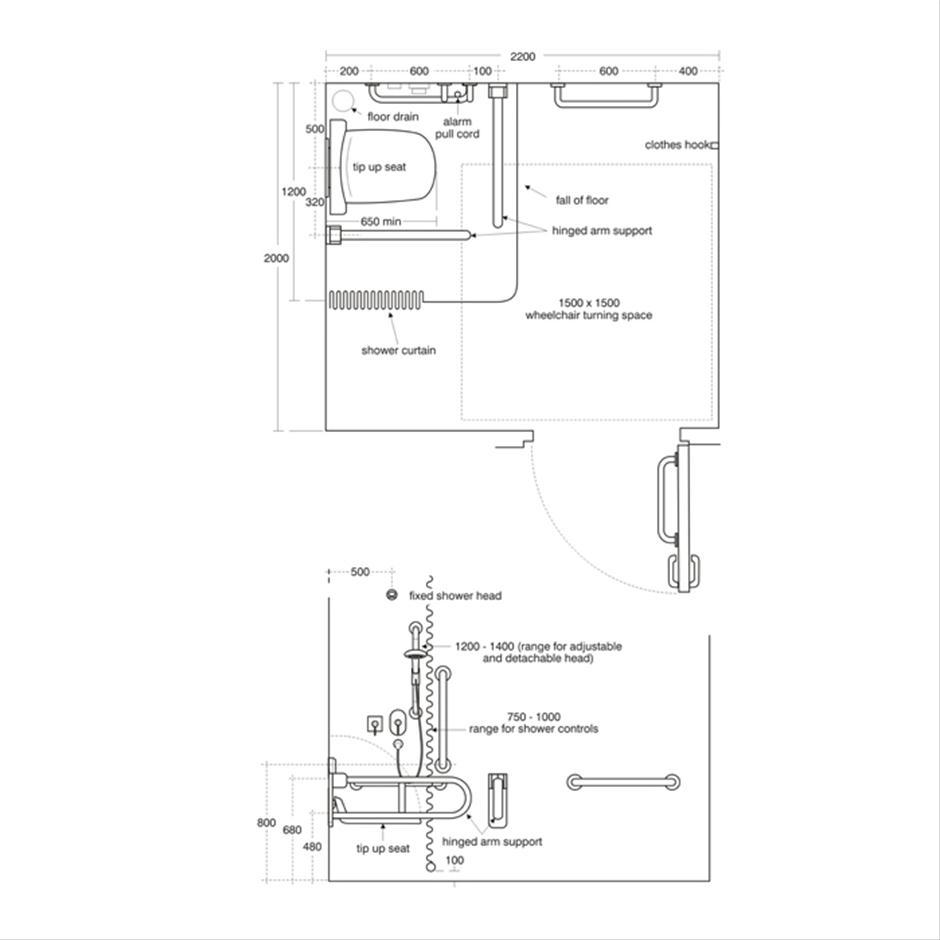
An installation for use by ambulant disabled, walking impaired and infirm people, providing shower area with slip resistant floor, hinged seat, lever operated mixer, adjustable shower head, shower curtain and grab rails.
Thermostatic shower valve TMV3 approved to help prevent scalding. The shower valve and diverter is more suited to duct installation.
Doc M Shower room individual items


Features:

  • Meets all Doc M Building Regulations
  • Lever operated mixer
  • LABC approved

Specifications:

  • Material: Mixed Material
  • Weight: 69.65Kg
  • Water Saving: Yes
  • Flow Rate: 7.5 Litres per minute @ 3 bar pressure

Special notes

For LRV and RAL numbers see Doc M introduction. Fixing heights: Floor to top of shower seat 480mm. Floor to centre of back rest of rail 800mm. Floor to centre of horizontal grab rail 800mm

Illustrated Code

S6960AC

  • S6960AC: Contour 21 DOC M Unisex Shower pack with white rails

S6960LI

  • S6960LI: Contour 21 DOC M Unisex Shower pack with blue rails

S6960LJ

  • S6960LJ: Contour 21 DOC M Unisex Shower pack with grey rails

S6960RN

  • S6960RN: Contour 21 DOC M Unisex Shower pack with charcoal rails

S6960MY

  • S6960MY: Contour 21 DOC M Unisex Shower pack with stainless steel rails

Downloads

Click for S6960AC Data Sheet

Delivery & Returns

Estimated Delivery: 2-5 working days †

Free Standard UK Delivery is available on all products to most of the UK!*

We use our own delivery team, as well as couriers and direct shipments from distributors and manufacturers for fast, safe and secure deliveries. We advise you to make arrangements with plumbers and fitters after your order has arrived.


Stock Availability

Please contact us to confirm stock prior to ordering to avoid any disappointment.

While we stock a limited number of products within our warehouse, other products may be stored elsewhere by suppliers, distributors or dire...

Estimated Delivery: 2-5 working days †

Free Standard UK Delivery is available on all products to most of the UK!*

We use our own delivery team, as well as couriers and direct shipments from distributors and manufacturers for fast, safe and secure deliveries. We advise you to make arrangements with plumbers and fitters after your order has arrived.


Stock Availability

Please contact us to confirm stock prior to ordering to avoid any disappointment.

While we stock a limited number of products within our warehouse, other products may be stored elsewhere by suppliers, distributors or direct from manufacturers themselves. This means that some products may experience longer lead times than others if new stock is required. If this is the case, we aim to notify you as soon as possible and if you're happy to continue, the new stock will be ordered.

Returns

A notification to Unbeatable Bathrooms must be made within 30 days of receipt of your goods, in writing via email to info@unbeatablebathrooms.co.uk and fully outlining the relevant issue/cause for the requirement to return the said goods.


 




†Estimated delivery is based on average delivery times. This timescale may vary based on individual items and is not a guarantee. If new stock is required, delivery may take longer than expected. If the estimated delivery date exceeds 5 working days, we aim to notify customers accordingly at the earliest convenience.

*Free Standard Delivery on all products to UK mainland only - excluding Scotland. (Excluding Tile products. If total order value is < £250 and includes Tile products, a delivery charge of £20 is applied. If total order value is > £250, delivery is Free). Click here to view our full Delivery & Refunds T&Cs. 

Price Match Promise

Found this product cheaper somewhere else? With our Price Match Promise, we'll match the total cost (including delivery) to any other online retailer**.

Complete our short Price Match form and our dedicated team will see if the item is eligible.

No Price Matching after purchase.

Description

Delivery & Returns

Price Match Promise

An installation for use by ambulant disabled, walking impaired and infirm people, providing shower area with slip resistant floor, hinged seat, lever operated mixer, adjustable shower head, shower curtain and grab rails.
Thermostatic shower valve TMV3 approved to help prevent scalding. The shower valve and diverter is more suited to duct installation.
Doc M Shower room individual items


Features:

  • Meets all Doc M Building Regulations
  • Lever operated mixer
  • LABC approved

Specifications:

  • Material: Mixed Material
  • Weight: 69.65Kg
  • Water Saving: Yes
  • Flow Rate: 7.5 Litres per minute @ 3 bar pressure

Special notes

For LRV and RAL numbers see Doc M introduction. Fixing heights: Floor to top of shower seat 480mm. Floor to centre of back rest of rail 800mm. Floor to centre of horizontal grab rail 800mm

Illustrated Code

S6960AC

  • S6960AC: Contour 21 DOC M Unisex Shower pack with white rails

S6960LI

  • S6960LI: Contour 21 DOC M Unisex Shower pack with blue rails

S6960LJ

  • S6960LJ: Contour 21 DOC M Unisex Shower pack with grey rails

S6960RN

  • S6960RN: Contour 21 DOC M Unisex Shower pack with charcoal rails

S6960MY

  • S6960MY: Contour 21 DOC M Unisex Shower pack with stainless steel rails

Downloads

Click for S6960AC Data Sheet

Estimated Delivery: 2-5 working days †

Free Standard UK Delivery is available on all products to most of the UK!*

We use our own delivery team, as well as couriers and direct shipments from distributors and manufacturers for fast, safe and secure deliveries. We advise you to make arrangements with plumbers and fitters after your order has arrived.


Stock Availability

Please contact us to confirm stock prior to ordering to avoid any disappointment.

While we stock a limited number of products within our warehouse, other products may be stored elsewhere by suppliers, distributors or dire...

Estimated Delivery: 2-5 working days †

Free Standard UK Delivery is available on all products to most of the UK!*

We use our own delivery team, as well as couriers and direct shipments from distributors and manufacturers for fast, safe and secure deliveries. We advise you to make arrangements with plumbers and fitters after your order has arrived.


Stock Availability

Please contact us to confirm stock prior to ordering to avoid any disappointment.

While we stock a limited number of products within our warehouse, other products may be stored elsewhere by suppliers, distributors or direct from manufacturers themselves. This means that some products may experience longer lead times than others if new stock is required. If this is the case, we aim to notify you as soon as possible and if you're happy to continue, the new stock will be ordered.

Returns

A notification to Unbeatable Bathrooms must be made within 30 days of receipt of your goods, in writing via email to info@unbeatablebathrooms.co.uk and fully outlining the relevant issue/cause for the requirement to return the said goods.


 




†Estimated delivery is based on average delivery times. This timescale may vary based on individual items and is not a guarantee. If new stock is required, delivery may take longer than expected. If the estimated delivery date exceeds 5 working days, we aim to notify customers accordingly at the earliest convenience.

*Free Standard Delivery on all products to UK mainland only - excluding Scotland. (Excluding Tile products. If total order value is < £250 and includes Tile products, a delivery charge of £20 is applied. If total order value is > £250, delivery is Free). Click here to view our full Delivery & Refunds T&Cs. 

Found this product cheaper somewhere else? With our Price Match Promise, we'll match the total cost (including delivery) to any other online retailer**.

Complete our short Price Match form and our dedicated team will see if the item is eligible.

No Price Matching after purchase.

We're rated 'Excellent'!